市道 追手町音羽町線

【一般公開用】

事業主体

静岡市

取組区分(事業内容)

再構築(ハード)、利活用

所在地

静岡市葵区駿府町1-2

位置

https://www.mapion.co.jp/m2/34.975427886013605,138.38527230482185,19

取組延長

約90m

路線幅員

16m(一車線)

事業期間

平成26年度~令和2年度
背景
・駿府城公園周辺では、「静岡市歴史博物館」の整備が進んでおり、(市)追手町音羽町線は、静岡市の中心市街地の商業地区から駿府城公園や静岡市歴史博物館へ誘うアクセス道路として、賑わいの創出や、回遊性の向上が必要であった。
・地元から、お堀の水辺を活用したオープンカフェ等公共空間の活用に向けた「地域活性化」についての要望書が提出された。
取組体制
事業主体:空間整備→静岡市、空間活用→御伝鷹まちづくり株式会社(都市再生推進法人)、静鉄プロパティマネジメント株式会社(共同運営者)
まちづくり会社、地元自治会町内会、地元発展会、交通管理者、市関係部局で「追手町音羽町線空間活用検討協議会」を設置し、検討を進めた。整備後は、都市再生推進法人との利便増進協定に基づき、都市再生推進法人による管理・空間活用を行っている。
取組過程
平成26年度 地元から要望書の提出。交通量調査、空間活用検討調査の実施
平成27年度 「追手町音羽町線空間活用検討協議会」を設立。社会実験としてマルシェを実施。
平成28年度~平成30年度 関係者協議、空間活用検討、空間整備着手
令和元年度 地元のまちづくり会社である『御伝鷹まちづくり株式会社』を都市再生推進法人として指定。
令和2年度 道路内建築物の設置にかかる各種手続き(特例占用許可、都市利便増進協定の締結等)の完了。
      都市再生推進法人による空間活用の開始
取組内容
(取組予定も含む)

【事業内容】
 再構築(ハード施策)

【具体内容】
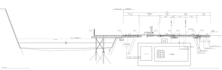
・中央分離帯や停車帯など、車線以外の車道空間を減らした
・道路空間を再編し、歩道の拡幅及び広場空間を創出
・駿府城公園の外堀に張り出しデッキを設置

【制度活用】
・都市再生整備計画事業(社交金)
・都市構造再編集中支援事業


【事業内容】
 利活用

【具体内容】
・路上に可動式のイスやテーブル、ソファ等を設置
・路上に屋台やキッチンカーを設置
・路上でのマルシェ(青空市場)、パフォーマンスなどのイベントを定期的に開催
・非定期的にイベントを開催
整備後は、利便増進協定に基づき、都市再生推進法人が管理・空間活用を行っている。
・都市再生推進法人による常設店舗・レンタルスペースの設置・運営
・可動式のイス・テーブルの設置
・キッチンカーの誘致
・マルシェ等のイベント開催 など

【制度活用】
・都市再生特別措置法による特例

社会実験の有無


【実施概要】
平成27年9月、
①来訪者が賑わい、憩うことができる空間の形成
②来訪者が安全、安心して利用できる基盤の形成
③来訪者に感動を与えることができる空間の形成
を方針に、「オクシズマルシェ」、情報掲示看板設置等による「リアルタイムな情報提供」、車両通行帯を減少・歩行者通行帯を確保した「道路空間の再配分」を実施

【実施結果】
・追手町音羽町線で賑わいづくりを行うことにより、中心市街地に回遊環境が創出することが可能であった。
・追手町音羽町線で賑わい空間を創出することが、「まちの魅力向上に繋がる」といった利用者意見が多く聞かれた。
・「景観を活かしたカフェ、レストラン」、「静岡の特産品を集めたマルシェ」、「地元アーティスト作品の即売所」といった施設の設置が賑わい空間づくりに寄与することが確認できた。
・追手町音羽町線の景観が魅力的であると考える利用者が多い。
取組効果
・道路空間の再編により、安全な歩行空間が確保でき、歩行者交通量が増加した。
・サークルベンチや、水辺デッキへのテーブル・椅子の設置により、このエリアに人が滞留するようになった。
維持管理状況
・都市利便増進協定に基づき、都市再生推進法人が管理を行っている。
今後の展望
 令和5年1月13日に、静岡市歴史博物館がオープンし、NHK大河ドラマ「どうする家康」もスタートしたため、来街者の増加が見込まれる。今後は、当該エリアのさらなる魅力向上に向けて、都市再生推進法人主体による空間活用を進めていく。

参考資料

Before

After

図面・写真

位置図
事業の推進体制
断面図(整備前)
断面図(整備後)

備考

連絡先

担当部署
静岡市都市局都市計画部都市計画課
TEL
054-221-1406
メールアドレス
toshi@city.shizuoka.lg.jp

事例一覧へ